The OAK
Overview
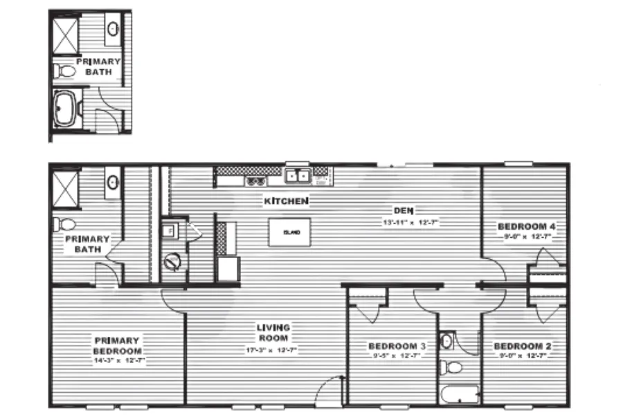
Floor Plan
The OAK
Overview
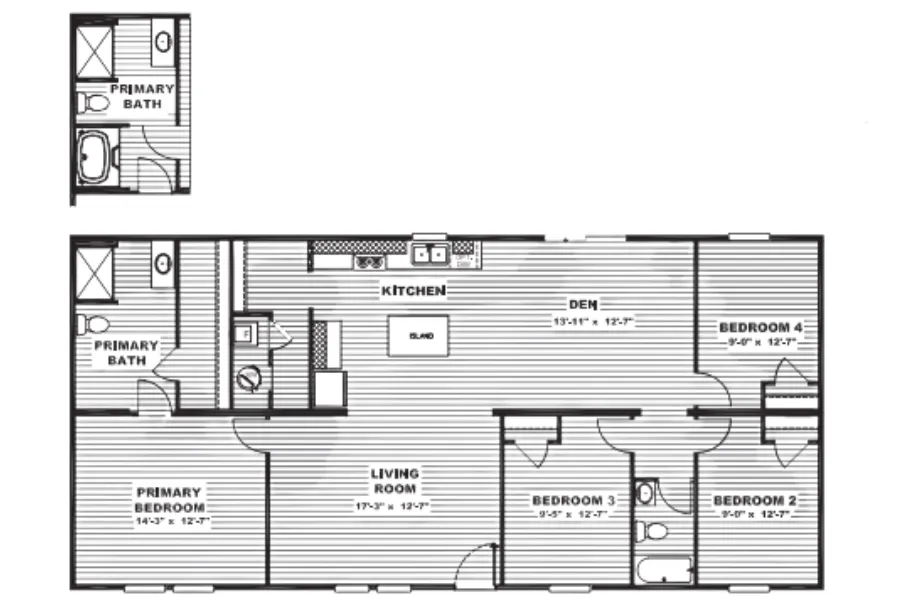
Floor Plan
The Oak is a smartly designed, family-focused manufactured home from the TRU Origin series, built for buyers who want maximum space, simplicity, and value. With 4 bedrooms, 2 bathrooms, and approximately 1,568 square feet, this home delivers a balanced layout that blends open living with private retreats. Designed with affordability and functionality in mind, the Oak is perfect for families, first-time buyers, or land-home setups looking for a home that simply makes sense. At the center of the home is a wide-open living room that flows directly into the kitchen, creating a natural gathering space for family and guests. The kitchen features a central island and efficient workspace layout, making meal prep, entertaining, and everyday living seamless. Listed pricing is the home before options.

We accept trades!
Find a new home you love? Contact us for more information about our trade-in requirements and to schedule your free trade evaluation.
Learn More

































Take 3D Tour
† Images may show options not included in base price
Schedule A Visit
† Advertised starting sales prices are for the home only. Delivery and installation costs are not included unless otherwise stated. Starting prices shown on this website are subject to change, see your local Home Center for current and specific home and pricing information. Sales price does not include other costs such as taxes, title fees, insurance premiums, filing or recording fees, land or improvements to the land, optional home features, optional delivery or installation services, wheels and axles, community or homeowner association fees, or any other items not shown on your Sales Agreement, Retailer Closing Agreement and related documents (your SA/RCA). If you purchase a home, your SA/RCA will show the details of your purchase. Homes available at the advertised sales price will vary by retailer and state. Artists’ renderings of homes are only representations and actual home may vary. Floor plan dimensions are approximate and based on length and width measurements from exterior wall to exterior wall. We invest in continuous product and process improvement. All home series, floor plans, specifications, dimensions, features, materials, and availability shown on this website are subject to change.
Find Your Perfect Home
© 1998-2026 Clayton. All rights reserved.